Состоялось заседание архитектурного клуба Союза Саратовских Архитекторов

В пространстве TNG-Teleport New Generation состоялось заседание архитектурного клуба Союза Саратовских Архитекторов, на площадке которого были представлены различные проекты  благоустройства территорий не только Саратова,

В пространстве TNG-Teleport New Generation состоялось заседание архитектурного клуба Союза Саратовских Архитекторов, на площадке которого были представлены различные проекты    благоустройства территорий не только Саратова, но и области.

Главный архитектор города  Анастасия Пузанова приняла участие в заседании клуба и рассказала о модернизации пространства путем реконструкции на примере двух объектов, которые размещаются на территории между улицами 2-я Садовая и Большая Садовая. Данная территория планируется к развитию в продолжение Новой Набережной, путем строительства берегоукрепительного сооружения с созданием благоустроенной пешеходной зоны.

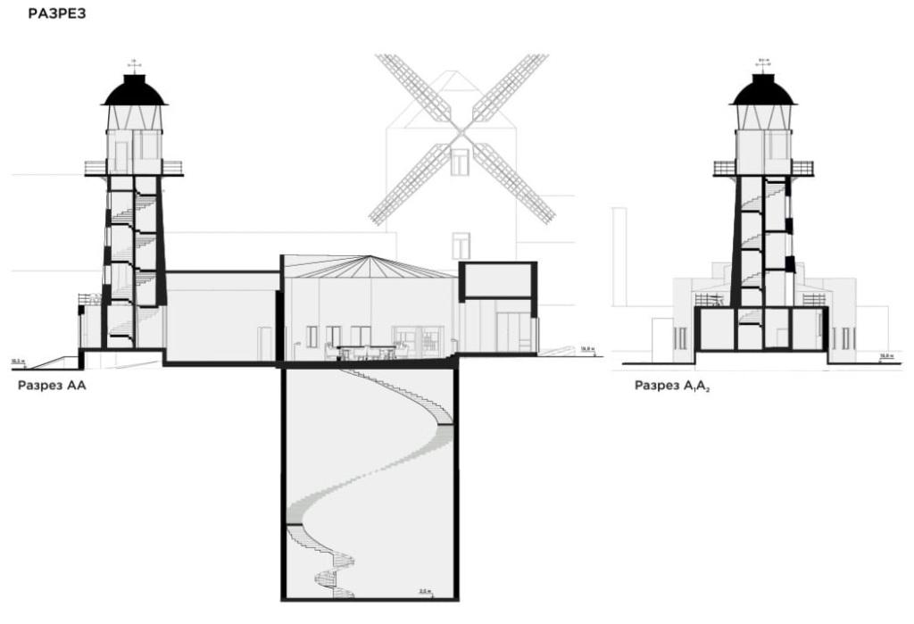
В рамках концепции благоустройства Набережной предлагается реконструкция существующей водозаборной насосной станции, которая в настоящее время принадлежит ООО «Концессии водоснабжения-Саратов», не эксплуатируется и находится в полуразрушенном состоянии. Здание насосной станции предлагается сохранить и путем реконструкции стилизовать под маяк, с организацией музея, в пространстве которого возможно было бы разместить экспозицию, посвященную развитию речного судоходства в Саратове, а также отдельно выделенной функциональной зоной кафе. В самой башне маяка предлагается разместить смотровую площадку, с которой открывается прекрасный вид на Волгу. 

Кроме того, в концепцию благоустройства входит предложение по реконструкции норийных башен и конвейерной галереи, ведущей с берега Волги на территорию АО «Саратовский завод хлебопродуктов». По разработанному эскизному предложению, предлагается поднять существующие эстакады вверх, чтобы обеспечить беспрепятственный проход по будущим пешеходным дорожкам и проезду. Фасад башен планируется обшить кортеновскими стальными панелями и стилизовать под мельницу. Конвейерную галерею, соединяющую верхнюю и нижние вышки, предлагается обшить черным профилированным металлом и разместить на его поверхности мурал «Хлеб всему голова». Новый фасад может быть дополнен архитектурной подсветкой.

Представленные проекты вызвали живой интерес у архитекторов и представителей общественных организаций. Поступило предложение более детально поработать над благоустройством самой Набережной и рассмотреть различные варианты проектирования.

Последние новости

Дебетовая карта для фрилансера: удобство или лишняя головная боль

Разбираемся, становится ли пластик помощником свободного специалиста или источником новых проблем

Как выбрать идеальный грузовик Dongfeng для вашего бизнеса

Руководство по подбору модели в зависимости от потребностей компании

Собаки тоже любят ароматерапию: зачем нужны диффузоры и спреи для животных

Как ароматы помогают питомцам успокоиться, лучше спать и справляться со стрессом

Когда скидки превращаются в ловушку: как маркетологи учат нас тратить

Почему “-50% только сегодня” не всегда значит выгоду, как скидки играют на эмоциях и почему даже рациональные люди становятся жертвами маркетинговых трюков.

Здесь вы найдете свежие и актуальные новости в Йошкар-Оле, охватывающие все важные события в городе

Комментарии (0)

Добавить комментарий

Ваш email не публикуется. Обязательные поля отмечены *